проект
квартира для молодой семьи
локация
москва
год
2019
площадь
55 м2
Эта дизайнерская квартира — идеальное место для молодой семьи с ребенком. Каждая деталь продуманна до мелочей, чтобы создать комфортное, стильное и функциональное пространство. Сочетание контрастных цветов, натуральных материалов и аутентичных предметов декора делает эту квартиру уникальной и неповторимой. Здесь каждая семья сможет найти свое идеальное место для жизни и отдыха. Картины, вазы, подушки и другие аксессуары подобраны с учетом общей стилистики и цветовой гаммы, создавая гармоничное и пространство.

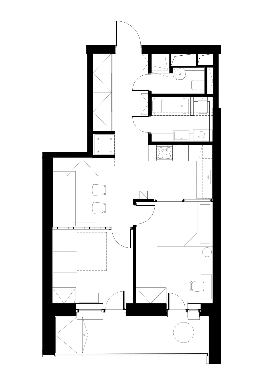
Кухня-столовая — это сердце квартиры, где семья проводит время вместе. Современная кухонная техника и удобная мебель делают это пространство функциональным и комфортным. Прозрачные стеклоблоки пропускают мягкий свет, создавая уютную атмосферу. Столовая зона оборудована удобным большим столом, стульями и диваном с мягкой посадкой, где можно наслаждаться семейными обедами и ужинами.

Спальня родителей с большой кроватью и низкой посадкой, рабочей зоной у окна. Вместительный шкаф для одежды. В интерьере использованы натуральные материалы и мягкие текстуры, создающие уютную атмосферу. Раздвижное окно из спальни родителей добавляет дополнительное освещение и визуально расширяет пространство, делая его более открытым и просторным.
Это пространство с
оздано с учетом потребностей ребенка. Яркие и веселые цвета, удобная кровать и игровая зона делают эту комнату идеальным местом для игр и отдыха. В интерьере использованы безопасные и экологичные материалы, а также функциональная мебель, которая растет вместе с ребенком. Планировка квартиры продумана так, чтобы из разных точек квартиры можно было наблюдать за маленьким ребенком.
Лоджия — это особенное место в квартире, где можно наслаждаться потрясающим видом на парк Олимпийской деревни. Большое витражное окно пропускает много естественного света, создавая ощущение простора и свободы. Это пространство идеально подходит для отдыха и наслаждения природой.

2 санузла с ванной и душевой кабиной, позволяет комфортно и автономно пользоваться и хозяевам, и гостям. Современная сантехника делают санузлы удобным и практичным.
Made on
Tilda