проект
ВИЛЛА МИЛЛЕНИУМ
локация
москва
год
2019
площадь
1700 м2
Перед нами стояла масштабная задача: разработать с нуля до полной реализации проект дома для большой семьи в Московской области.

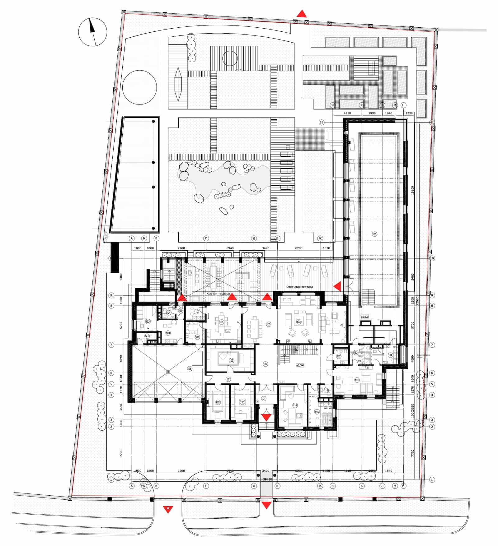
Участок площадью 0,34 га расположен в коттеджном поселке «Миллениум-парк», главная особенность которого – это собственная внутренняя сеть рекреационных пространств: каналов, парков и прудов. Поэтому следовало продумать такую конфигурацию дома, которая позволит получить максимум визуального и функционального комфорта. В итоге на участке появилось вытянутое здание П-образной формы, образующее уединенный камерный двор-сад, обращенный в сторону канала с северо-западной стороны.
Сдержанный стиль, строгий фасад и тщательно подобранные материалы создают атмосферу очень светлого и по-домашнему приветливого пространства. Основная часть дома имеет традиционное зонирование: общественная зона на первом этаже и спальни членов семьи на втором. В боковом крыле расположен 25-метровый крытый бассейн, а с другой стороны оборудовали крытый павильон со скалодромом и спортивным комплексом. Центральную часть участка украшает японский сад камней с ручьем.

Строгая архитектура дома диктовала характер и интерьеру. Мы продумали общую структуру пространства, намеренно придерживались сдержанного, но в то же время изысканного стиля, не перегружали интерьер деталями и разнообразием: оставили только действительно необходимое и функциональное. На первом этаже расположены: большой холл с монументальной лестницей, вокруг которой развивается вся планировка дома, зона отдельных гардеробов для каждого члена семьи, большой гараж с примыкающей квартирой управляющего, кабинет при входе, основная группа главных помещений: двухсветная гостиная, кинотеатр, столовая, кухня, примыкающая к столовой, крытая терраса с зоной барбекю с выходом из кухни, открытая терраса с выходом из столовой, зона спорта: спортзала и бассейн с душевыми. Второй этаж занимают: холл второго этажа с окном в двухсветное пространство гостиной и четыре автономных блока спален с собственными санузлами, гардеробными комнатами и выходами на собственные террасы.

Композиционно планировка дома построена вокруг оси, проходящей через двухсветную гостиную – самый большой объем в здании с окнами огромной высоты обращенными во двор. По обе стороны от гостиной общее пространство «перетекает» в зону кинотеатра справа и столовой слева. В этом самом большом общем пространстве в доме используются - гармоничные сочетания материалов: ореха, мрамора зебрано, серого сланца, декоративных красок и контрастного черного дерева. Четкая симметрия в гостиной прочитывается и в положении камина с нишами по обеим сторонам от него, в расстановке кресел и диванов, лежаков и стеллажей и двух светильников куполов, диаметром 80 сантиметров – все вместе и создает атмосферу релакса и общения. Зона кинотеатра имеет уникальный кессонный потолок чуть ниже чем в арочный потолок в гостиной, усеянный системой из стеклянных подвесных светильников ручной работы, эффектно сияющих на фоне контрастного цвета венге самого потолка. Потрясающе удобный мягкий диван от Edra разместился напротив широкоформатного экрана телевизора, для приятного просмотра. В центре кухни – плита с пятью конфорками. Хозяин очень любит готовить и, конечно, вся техника в доме на самом высоком уровне. Крытая терраса с выходом из кухни оборудована большой печью с мангалом, плитой, мойкой и большой рабочей поверхностью, работает абсолютно автономно от основной кухни, там есть барная стойка и большой обеденный стол, для отдыха на открытом воздухе.
Made on
Tilda